SKANÖR

Typ:

1 ½ GESCHOSSIGES HAUS

Wohnfläche (Brutto):

167 m²

Zimmer:

6

Küche:

Bad / WC:

1 / 1

Garage

-

Dieses schöne, stilvolle Landhaus
... ist von den Traditionen der südlichen schwedischen Provinzen geprägt. Weiß verputzt, mit markantem Dachfries unter dem Dachüberstand und mit ausgewogen proportionierten Fenstern bekommt das Haus einen klaren, harmonischen Charakter. Die im Kontrast zum Putz graue Dekorfarbe der Details verstärkt den Ausdruck der Linienführung.

Erdgeschoss:
Die geräumige Eingangshalle verbindet nicht nur die Räume des Erdgeschosses, sondern ermöglicht über eine 1/4 gewendete Treppe den Zugang zum Obergeschoss. Die Küche, modern eingerichtet mit einer Kochinsel, liegt zwischen Wohn- und Hauswirtschaftsraum. Im Wohnzimmer sorgen Fenster Partien in drei Himmelsrichtungen für eine ausgewogene Belichtung des Raumes.

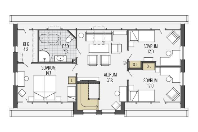
Dachgeschoss:
Der Gemeinschaftsraum trennt die Kinderschlafzimmer vom Elternschlafzimmer und sorgt so für Abgeschiedenheit. Das Vollbad bietet genug Raum für eine gemeinsame Nutzung. Durch zusätzliche Dachflächenfenster kann noch mehr Licht in die Räume gebracht werden.

© 2022 G.K. SVERIGE HUS GmbH - erstellt von Schmoock Design

Diese Internetseite verwendet Cookies, um die Funktionalität und den Inhalt zu optimieren. Durch die Nutzung unserer Website wird der Verwendung von Cookies zugestimmt. Weitere Informationen zu Cookies und der Verwendung Ihrer Daten erhalten Sie in unserer Datenschutzerklärung.

Einstellungen